340 Raphael Court
El Dorado Hills, CA 95762

This extraordinary estate, currently under construction, redefines luxury living with its unparalleled design and thoughtful features. Situated to maximize breathtaking views of Folsom Lake, this home offers a seamless blend of elegance, functionality, and entertainment, perfect for both relaxation and hosting memorable gatherings.

Architectural Excellence & Thoughtful Design
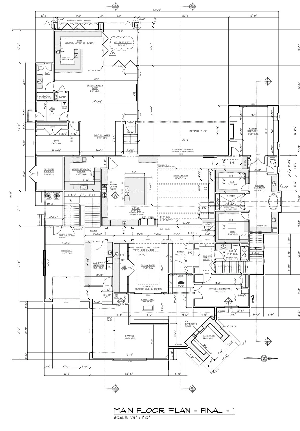
Step through the private gate house into a beautifully designed courtyard that welcomes you to this one-of-a-kind home. The dining room, with its walk-in wine cellar encased in a wall of glass, opens to the courtyard, creating a sophisticated yet inviting atmosphere. The expansive great room flows effortlessly into a gourmet kitchen equipped with state-of-the-art appliances and a hidden scullery, cleverly concealed behind a secret cabinet door.

The formal office, also opening to the courtyard, provides a serene and inspiring workspace, while a dedicated dog room ensures your furry family members feel at home.

Unmatched Entertainment Spaces
The entertainment area is a true showstopper. Designed with a golf simulator, lounge area, and a full bar, this space blurs the line between indoor and outdoor living. Collapsible glass doors open to a covered patio and outdoor kitchen, creating the perfect venue for any gathering. A second covered patio extends from the bar, providing another cozy space for relaxation and connection.

Luxurious Living Spaces
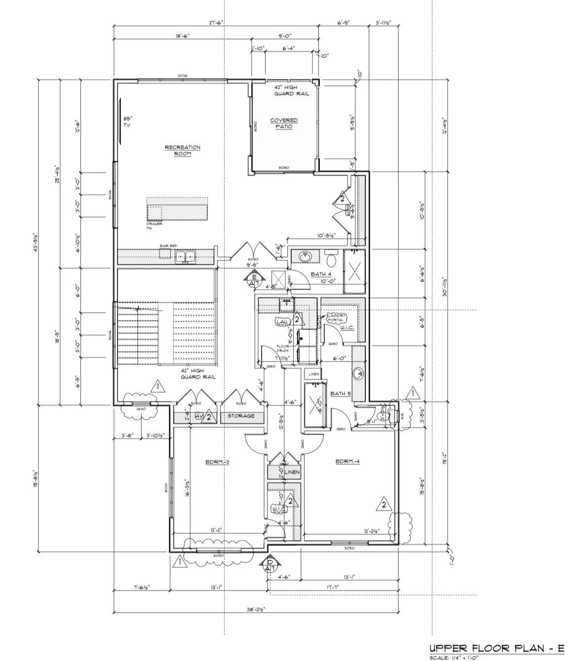
The master suite is a private retreat, complete with a spa-like bathroom featuring a soaking tub, steam shower, and dual walk-in closets—one with a center island for ultimate organization. Upstairs, two en-suite bedrooms, a laundry room, a server room, and a bonus room with a bar and balcony offer additional space for family or guests.

Exceptional Convenience & Functionality
This home includes both upstairs and downstairs laundry rooms for convenience. The main-level garage accommodates two cars and a golf cart, while the subterranean garage, measuring an impressive 30 feet wide by 50 feet deep, is ideal for boats, sprinter vans, or additional storage.

Resort-Style Outdoor Living
Designed to make the most of its scenic surroundings, the backyard features a pool, spa, firepit, and sports court. The outdoor kitchen and multiple covered patios invite year-round enjoyment of the spectacular views.

This visionary estate represents the pinnacle of modern luxury, blending exceptional design with state-of-the-art amenities to create a home that is as functional as it is beautiful. Stay tuned for updates as we bring this masterpiece to life.

Previous
Previous

251 Mondrian Court

Next
Next

100 D Oro Court